天津未来城怎么样?楼盘地址及户型图等信息推荐
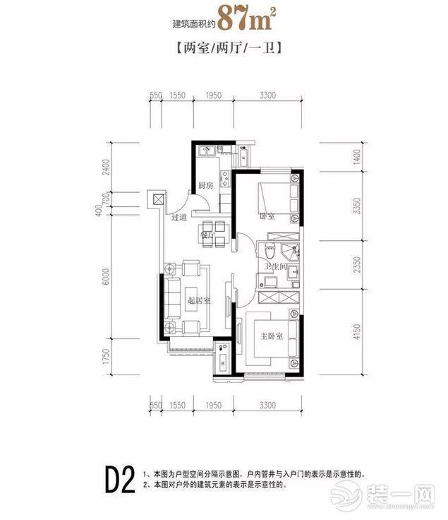
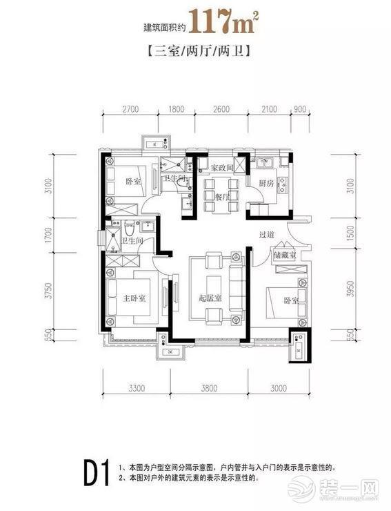
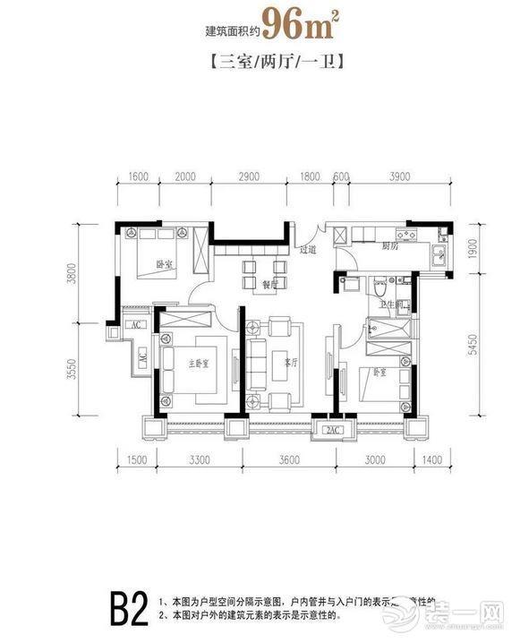
天津装修网今天跟大家分享的楼盘是未来城。天津未来城楼盘后期将有新房源加推,目前仅一期房源在售,高层22-26层到顶,户型建面为87、117平米,均价18000-20000元/平米。洋房9层到顶,户型建面138平米,均价21000-22000元/平米。

天津未来城楼盘周边设施
交通公交:852、675、27、334、641、671等
轨交:3、5号线宜兴埠站、宜兴埠北站、张兴庄站、天士力站,通过地铁换乘,亦可快速到达天津市区。
自驾:东侧紧靠外环线,连接北京天津,西侧的铁东路纵贯天津南北,连接河北区、河东区
幼儿园:第一中心幼儿园
中小学:普育小学、宜兴埠第一小学
大学:天津职业大学
综合商场:人人乐购物超市、北宁湾生活商圈、华联超市
医院:天津市第一医院、安捷医院,二五四医院、第四中心医院
银行:建设银行、农业银行、工商银行、中国银行、中国邮政储蓄、天津农村合作银行、兴业银行
邮政:邮政储蓄
其他:麦当劳、北京牧羊人、友鹏海鲜、外滩风尚、集贤阁海鲜酒楼、筋头巴脑、彤德莱、老川鲁
小区内部配套:幼儿园、小学
天津未来城地址
项目地址: 北辰宜白路地铁三号线(宜兴埠站)北侧
天津未来城户型图




天津未来城楼盘样板间





“以上天津未来城楼盘信息文章展示,仅为装一网网友提供天津未来城楼盘最新信息、户型图、样板间装修参考,非天津未来城楼盘广告宣传,投资有风险,购买需谨慎”
标签:
104
易燃液体的危险特性有哪些? 凡在常温下以液体状态存在,遇火容易引起燃烧,闪点在45摄氏度以下的物质称为易燃物质。 在《化学品分类和危险性公示通则》(GB 13690-2009)中,易燃...
144
因太丑她被经纪公司解约,如今脚踩隐形靴复出,还勒出翻盘腿 吴映洁鬼鬼她可以说是很让人心疼的一位女星了吧?当年被经纪公司嫌弃也就罢了,没想到她的亲身母亲却狠狠地“坑”...
65
赵韩樱子晒与关晓彤同框美照说“对不起”,一语双关引网友猜测 不知大家有没有看极光之恋,这部超级玛丽苏剧虽然评分不是很高,但是还是有一定热度的,尤其是号称玛丽苏之光的...
58
中国的隐世家族还有吗? 很多人都对神秘的隐世家族充满了好奇和想象。这些家族据说隐藏在我们日常生活之外,背后掌握着巨大的权力和财富。在中国古代历史中,确实有一些被称为...
169
DNF使徒原画图集:动人的阿拉德故事就从这里展开 第一使徒——“宿命者”卡恩 第二使徒——“哭泣之眼”赫尔德 第三使徒——“天骄”普雷 第四使徒——“征服者”卡西利亚斯 第...
167
PGONE《圣诞夜》歌词被举报提议封杀,网友:粉丝成神秘群体! 自从李小璐夜宿嘻哈歌手PGONE家中的消息爆出来后,李小璐、贾乃亮、PGONE这三个人成为了这段时间的热门话题,也将他们...
93
陈赫林志玲率队出击,《王者出击》新一期对决,心疼王嘉尔 《王者出击》播出新一期节目,这一期是由陈赫率领的风队与林志玲率领的林对进行对决。 两对阵容分别是: 风队,陈赫孙...
79
指数基金小知识详解中证1000指数 在A股市场中,中证100是核心资产的代表,中证500代表了中盘股,而中证1000则体现了小市值上市企业的表现,收益于国家政策的扶持,今天我们就来看看...
94
这几个原因告诉你,新加坡为什么是出国劳务的热门选择 新加坡一直是中国对外劳务输出的主要国家之一,每年都有大量劳务人员选择去新加坡工作。为什么新加坡会成为我国出国劳务...
191
赵韩樱子有没有整容 为什么比不过赵丽颖? 不知道大家还记得去年播出的一部《因为爱情有多美》吗?而其中富家千金女林多美的扮演者赵韩樱子,让很多人都很疑惑,以她当时的情...
154
普通人如何能挣到50万 要想挣到50万,普通人需要做好以下几点: 增加收入:可以通过提高职业技能和开展兼职、副业等方式增加收入。同时也可以寻找更高收入的工作或职业,积极争...
190
那些适合女孩子的小纹身 很多人都会认为纹身是只有叛逆的人才会做的事情,其实这个观念已经很落后了。现如今纹身早已经成为一种社会流行的时尚和个性,彰显着自我的表现。当然...
175
教室门揭秘:学生言行曝光引发公众震惊! 正文: 近日,一段名为教室门的视频在网络上广为流传,引起了广泛关注。这段视频据称是在北京某大学401教室内拍摄的,揭示了教室内的...
63
吉林省有个吉林市,吉林的省会是长春,省市同名却不是省会 在生活中有很多人同名同姓,也有很多同名的地名,比如江西省的南昌市南昌县,湖南省的长沙市长沙县等等;这些都是市...
145
华中师大教授荣登央视《百家讲坛》,主讲大秦崛起 楚天都市报9月29日讯(记者揭明玥 通讯员党波涛)昨日(28日),《大秦崛起》上部第8集《秦晋围郑》在央视《百家讲坛》准时播...
67
广西百色市祈福高中 1 百色祈福高中是广西示范性普通高中,市公办重点高中。 2 百色市三所重点高中之一。 3 创办于2000年,十几年的发展祈福高中已经成为百色教育的品牌学校。 4...
149
碧缇福护颈仪有效果吗_鼎团网 一天到晚累得很,肩部放松,来个捶打与按摩,真的会很舒服。家庭配备一款简单实用的碧缇福护颈仪,就可以达到这样的目的,不仅捶打的功能与操作...
186
足球-欧冠:皇马获得冠军 新华社照片,米兰,2016年5月29日(体育)(11)足球——欧冠:皇马获得冠军5月28日,皇家马德里队球员拉莫斯(左三)在比赛中破门得分。当日,在2015-20...
161
英雄联盟:梦魇这到底是灵异事件,还是BUG啊 怪异传说(五) LOL梦魇事件 一场半途崩溃的游戏,所有人都掉线后竟然仍在继续?而后面发生的事,更让人不寒而栗... 今天就来说一说,在...
79
年会最好玩的抽奖玩法集合 公司年会,大概是员工最期待的年终盛会,毕竟辛苦工作一年,好好放松放松的时刻到了,年会现场即是年终福利的发放现场,也是公司激扬士气,调动员工...